Our Laundry Trailers are optimal for emergency and disaster relief, alongside homeless outreach.
There is a constant demand to help those who are displaced from disaster. This combined with homelessness becoming more prevalent, has allowed mobile trailers to becoming more essential to help those in need.
Montondo Trailer have trailers to suit any situation where you need onsite laundry facilities. Laundry facilities are essential to outreach programs helping those in need. Whether it be for those in need, or for your company’s employees working an event, having the option for portable outside laundry in whatever day to day operation that is being held is crucial. Laundry facilities are rarely available for the homeless, or those displaced by a natural disaster.
To offer more comfort, consider getting a Mobile Laundry Trailer.
Choose the Perfect Laundry Trailer for Your Business
For events, construction projects, or site services requiring robust sanitation support, Montondo Trailer delivers mobile operations trailers designed to function seamlessly in remote locations without water, sewer, or electrical infrastructure. Our specialty trailers cater to disaster relief organizations, non-profits, and businesses needing reliable laundry solutions that prioritize personal hygiene and operational efficiency.
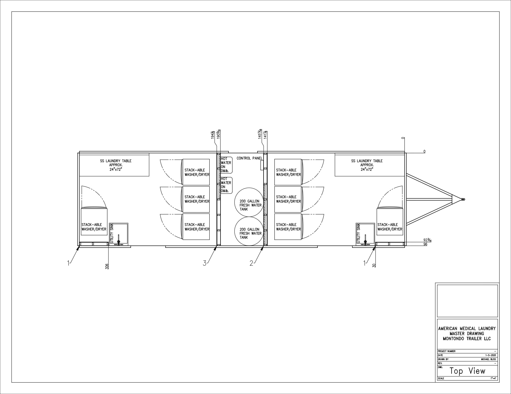
Available in multiple sizes, our mobile operations trailers feature high-capacity washers, dryers, and onboard water tanks to handle diverse demands-from festival staffing to emergency response teams. These specialty trailers ensure clean linens and uniforms, critical for maintaining personal hygiene standards in challenging environments like oil fields, military bases, or disaster zones.
Call Montondo Trailer at (800) 680-2902 to schedule a free consultation and explore how our mobile operations trailers can enhance your site services or events with tailored, self-contained laundry solutions.
Mobile Laundry Trailers
Montondo’s mobile laundry trailers provide reliable, self-contained solutions for construction sites, emergency management mission support, or daily operational needs. Equipped with stackable commercial-grade washers and dryers, these units maximize efficiency in remote locations, even without direct water or power infrastructure access. Available in multiple sizes, they eliminate wait times and ensure seamless workflow for crews, disaster responders, or emergency management mission teams.
Key features include spacious utility countertops for folding and ironing, comfort-enhancing air conditioning, and non-slip flooring for enhanced safety. For sites requiring comprehensive hygiene support, pair our laundry trailers with mobile showers to create a full-service sanitation hub. Built with rugged durability, these trailers are easily relocatable, making them ideal for construction projects, post-disaster recovery, or temporary water-dependent operations.
From industrial zones to humanitarian efforts, our mobile laundry trailers (optional mobile showers) ensure hygiene standards are met, no matter the challenge.
Portable Laundry Trailers
Our self-contained portable laundry trailer includes freshwater and waste tanks. We have small and large capacity trailers with built-in ventilation, so they can quickly wash and clean clothes. Our team can assist your business with every step of the process to buy and set up portable laundry trailers, including:
- Expert planning
- Accurate delivery
- Timely service
We provide additional services like portable restrooms, hand-washing stations, and shower trailers. Our portable laundry trailers are available with custom options to meet your business’s unique needs. Before delivery, all mobile laundry units and equipment undergo a thorough inspection.
Laundry Trailer Rentals
We provide laundry trailer rental services to businesses for events where attendees can do their laundry, such as:
- Campsites
- Sports complexes
- Music festivals
We offer trailers with an open floor plan that maximizes productivity by allowing people to move easily inside and outside.
No matter the size and type of event, we can provide laundry trailer services for your business. We offer laundry trailers in six, ten, or custom configurations, with delivery and pickup schedules that work for you. Contact our sales representatives to learn more about our laundry trailer rental services.
Contact Montondo Trailer in Buffalo, NY, today for turn-key portable laundry trailers. Call us at (800) 680-2902.
Frequently Asked Questions
Our portable laundry trailers with six washers and dryers can handle 250 pounds per hour. Six laundry stations can serve 750 guests, and the smallest configuration of three can serve up to 250 guests. Give us a call to find the right-sized laundry trailer.
For remote locations without plumbing or electricity, our trailers can operate self-sufficiently without hookups.
Yes. We can add one to two portable toilets in the laundry trailer.
Our laundry trailers have amenities, such as on-demand hot water, ironing boards, and storage shelves. We also install bright lights inside the trailer and a folding table for convenience.







